美术系环境艺术设计专业民宿改造项目考察调研
近日,环境艺术设计专业《公共空间设计》课程由周益、杜晓霞和毕存碧三位老师带队赴慈溪市大山村开展民宿改造项目的考察和调研工作。
我校乡村文旅融合研究中心围绕浙江省旅游业“微改造、精提升”进行美术系2021年专业实践课程,进一步发挥学校在人才培养、科学研究、社会服务、文化传承创新等方面服务地方经济和社会发展的作用。同时专业实践课程是艺术设计类专业非常重要的一门实践类课程,是学生接触自然、接触社会,收集创作元素、激发创作灵感的重要教学环节。
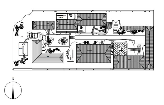
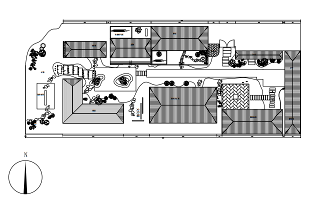
大山村位于慈溪市最南端,村庄四面环山、山清水秀,2018年被农业农村部推为“中国美丽休闲乡村”,2000年被评为浙江省“专业特色村”。本次调研的对象是大山村一个处于半停产状态的老旧厂房,村里希望把它改造成集“民宿+农事体验+旅游”于一体的“产业联动中心”,推动大山村旅游产业的提质升级。
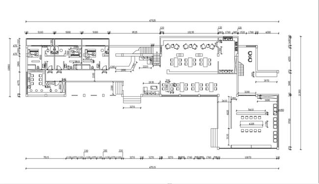
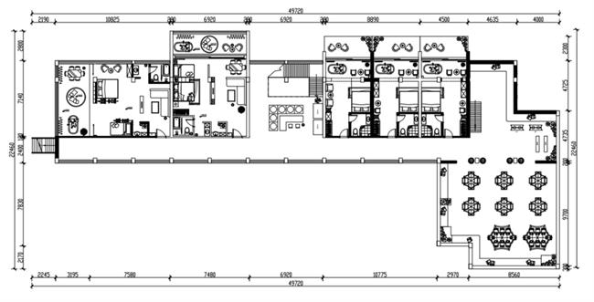
为期一天的专业实践课程中,学生分工有序,认真细致地分析厂房周边环境、测量建筑数据。量房结束后,老师们在现场对每个小组的测绘图进行点评,指出不足及需要改进之处。回校后,学生在老师的指导下利用自己的专业知识,从项目定位、空间规划、平面方案等方面着手进行项目的改造和提升,为助力美丽乡村建设添砖加瓦。
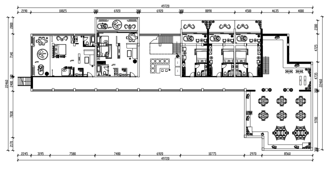
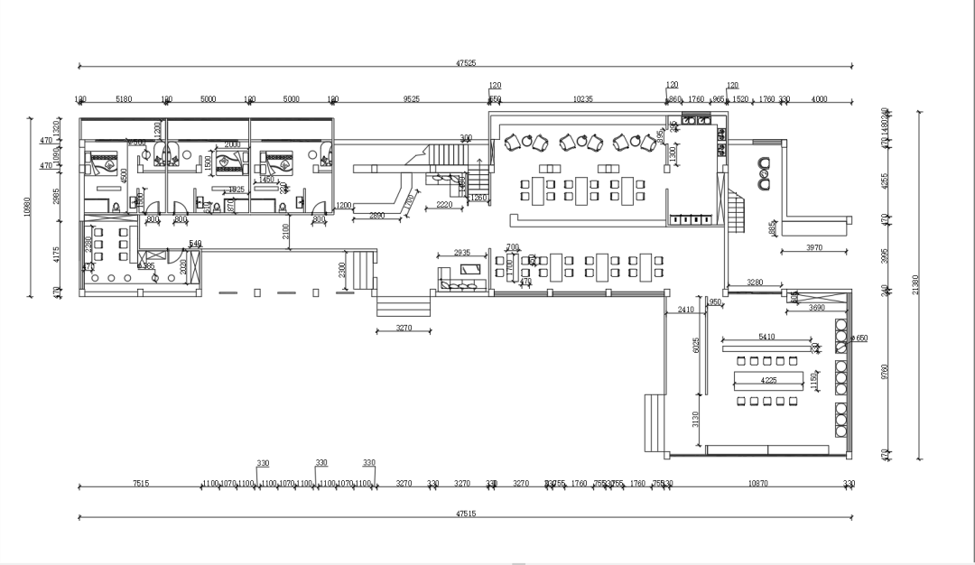
学生初步设计方案:













